軽井沢ヴィラ 大日向F棟
山が見える別荘
分譲地
土地+建物
2BEDROOM
床面積 69.00㎡
土地建物価格
100,000,000 円大日向F棟
軽井沢ヴィラ 大日向 F棟
土地建物価格
100,000,000 円ABOUT別荘について
軽井沢の豊かな自然に囲まれた大日向の第2期分譲地に位置する5棟のうちの1棟です。大日向は、美しい四季の移ろいを感じられる穏やかな環境にありながら、利便性も兼ね備えた人気のエリアです。
LOCATION周辺イメージ

-
物件の所在地
⻑野県北佐久郡軽井沢町⼤字⻑倉
-
交通の便
北陸新幹線「軽井沢」駅 車約20分(約8.3km)しなの鉄道線「中軽井沢」駅 車約10分(約4.4km)
-
用途地域
第1種住居地域
-
土地面積
306.00 ㎡(92.56坪)
-
建物面積
69.00 ㎡( 20.87坪)
POINTこだわりポイント
SCROLL
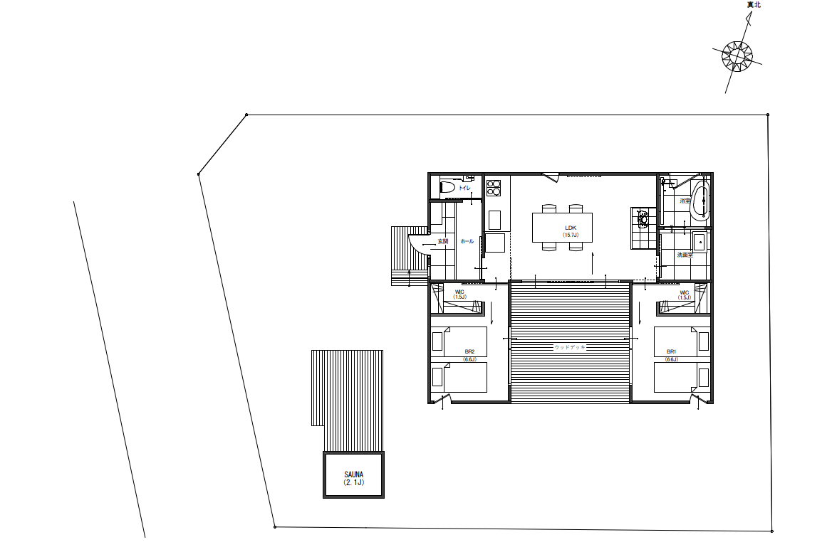
FLOOR PLANフロアプラン
- * 海外の別荘のような、中庭を囲む間取り。 コンパクトであり、程よい距離感でお互いを感じられる居室空間と、究極にプライベートなテラスは、今までありそうでなかった間取りです。フィンランド式サウナ付きです。

SPEC物件概要
- 広告主の取引態様/売主
- 所在/⻑野県北佐久郡軽井沢町⼤字⻑倉
- 交通の便/北陸新幹線「軽井沢」駅 車約20分(約8.3km)しなの鉄道線「中軽井沢」駅 車約10分(約4.4km)
- 販売区画/1戸
- 総面積/306.00 ㎡
- 私道負担面積/無し
- 建物面積/69.00 ㎡
- 構造/木造
- 建築確認番号/第BVJ−TOK24−10−0509 号
- 都市計画/非線引区域
- 用途地域/第1種住居地域
- 建ぺい率/指定建蔽率/60%
- 容積率/指定容積率/191.48%
- 道路/⻄側/幅員約4.7m
- 設備/電気/中部電力
- 設備/ガス/-
- 設備/水道/町営水道
- 設備/汚水・雑排水/公共下水
- 法令に基づく制限等/ 軽井沢町⾃然保護対策要綱 ⻑野県景観条例 軽井沢町景観育成基準ガイドライン遵守 土砂災害警戒区域
- 備考:本地は公共下水の供給エリアになります。使用にあたっては受益者負担金(敷地1㎡あたり600円)の納付が必要になります。 掲載しているイメージ画像や図面は完成予想図です。仕様は変更になる場合があります。
- 広告主の名称又は商号/株式会社it’s House
- 広告主の事務所の所在地/東京都港区赤坂5-2-33-1912
- 広告主の事務所の電話番号/03-6823-0724
- 広告主の宅建業法による免許証番号/東京都知事(1)第105609号
- 広告主の所属団体名及び公正取引協議会加盟事業者である旨/ 一般社団法人全国不動産協会東京都本部会員 公益社団法人 全日本不動産協会東京都本部会員 公益社団法人不動産保証協会 公益社団法人首都圏不動産公正取引協議会加盟