L-07
床面積 75㎡
2BEDROOM
本体標準価格
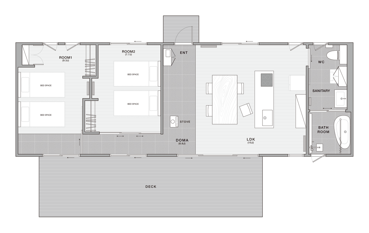
31,878,000 円〜使い方は無限大! 土間のある暮らし。
日本の家づくりの特徴のひとつ、「土間」。 建物の外と内の中間領域のような曖昧な空間が、機能性を発揮しながら、暮らしのなかにゆとりを感じさせてくれます。
本体標準価格
31,878,000 円〜ABOUT別荘について
玄関から広がる土間空間と、リビングの両面の大きな窓がホテルライクな空間を実現します。
土間スペースに薪ストーブを設置すれば、揺れる炎が暮らしの中心に。
寝室にのびてゆく土間はどこか縁側の雰囲気を醸し出し、寝室に設えた木目のオープンクローゼットは、あえて“魅せる”収納に。
どんな風に暮らそうか想像するだけで愉しくなる空間をデザインしました。



INFOMAITON別荘について

-
面積
75.00㎡
-
耐震等級
3
-
UA値
0.36~0.45
-
ZEH基準
対応
POINTこだわりポイント
SCROLL
LINE UPその他のラインナップ
-
TYPE: L-01 A1BEDROOM ~50㎡20,075,000 円〜
-
TYPE: L-01B1BEDROOM ~50㎡20,020,000 円〜
-
TYPE: L-02A1BEDROOM 70㎡~32,010,000 円〜
-
TYPE: L-02 B1BEDROOM 70㎡~32,648,000 円〜
-
TYPE: L-031BEDROOM 50~70㎡25,663,000 円〜
-
TYPE: L-042BEDROOM 50~70㎡29,205,000 円〜
-
TYPE: L-052BEDROOM 50~70㎡30,470,000 円〜
-
TYPE: L-062BEDROOM 50~70㎡30,745,000 円〜
-
TYPE: L-072BEDROOM 70㎡~31,878,000 円〜
-
TYPE: L-082BEDROOM 70㎡~29,975,000 円〜
-
TYPE: L-091BEDROOM 50~70㎡26,653,000 円〜